搭載するイスについて
RCS搭載イス タイプP シアターモア・プレミアム
天然木をふんだんに使ったクラシックなフォルムとボリューム感あふれる贅沢なクッション。ひとクラス上の品質と意匠が、極上の時を演出します。
移動観覧席でありながら、新基準を設けた開発により、固定式の劇場イスと同様の「品質」と「快適性」を装備しました。時代が求めるコミュニケーションの広がりと進化へ向けて、これまでに育まれてきた劇場の格調をそのままに、新時代を見つめた空間活用を実現。進化した可変劇場イスにより、これまでの固定席で構成されていた本格的なホールの多目的な活用を可能としました。上品で格調高い空間を生み出す、最新の技術が詰まった劇場イスです。

タイプP [上張り KW-44/木部 PW-320]
製品情報

美しい曲線を描く格調高い厚みのある背板に、ボリューム感あふれる贅沢なクッションを備え、上体を心地よくサポートします。

腕をのせた時に実感する、天然木ならではの柔らかな質感。そのディテールへのこだわりがプレミアムの証です。

波形スプリングを内蔵し、固定式の劇場イスと同等の構造を採用した座。他の移動観覧席のイスとは一線を画す、究極の快適性を実現しました。
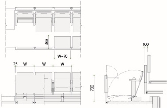
RCS搭載イス タイプLW / L
厚みのあるクッションと三次元形状の背のフィット感。高品位な落ち着きを醸すシンプルなフォルムは企業・自治体の研修施設やホール、式典や講演の多い学校にもお勧めです。
Lの座は張り包み、LWは座裏と背面に天然木を配し、音響への配慮と快適な鑑賞環境を高めました。高品位な落ち着きを醸し出す、ラグジュアリーの名に相応しい製品です。快適性を追求した座のクッションは、スタンダードタイプの2倍の厚みで、固定イスと変わらない座り心地を提供します。

身体のラインに沿った三次元形状の背が、上体にやさしくフィット。

無垢の木材を用いた高級仕様の肘掛けです。

快適性を追求した座クッションは、スタンダードタイプの2倍の厚みをもちます。
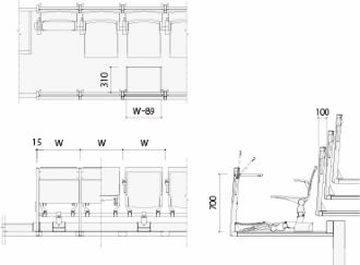
RCS搭載イス タイプ5ATR / 5R / S
多目的ホールから学校の講堂・体育館まで幅広いニーズに対応する3タイプのバリエーション。これまで最も多く選ばれているスタンダードシリーズです。
5ATRは背裏に天然木を配し、シンプルなデザインの中に高級感を演出。背座クッションにはウレタンを用い、長時間の着座に耐えられる座り心地を目指しました。肘当の天然木は、柔らかな落ち着きのある触感を提供します。多目的ホールから学校の講堂まで、幅広く多彩なニーズに対応します。5Rは着席時にイスの背上部が湾曲し、安定した着座姿勢を保持するフィットバック機能を搭載。座は緩やかに起立する座自動緩起立機構を装備しており、離席時の衝突音や振動が発生しません。Sはラインナップの中で最もシンプルで、コストパフォーマンスの良い製品です。張地には通気性・強度性共に優れたメッシュ布地を採用。体育館や講堂を中心に、主に学校で高いニーズを誇ります。

座自動緩起立機構
イスの座が緩やかに起立するため、離席時の衝突音や振動が発生しません。
対応イス 5ATR・5R

フィットバック機能
着座時に、イスの背上部が湾曲し、安定した着座姿勢を保持します。
対応イス 5R
RCS/RSP搭載イス eFORM
カーブ配置を可能にした独立脚タイプ
脚部を各席で独立させることで、従来の移動観覧席では難しかったコロシアム型のカーブ配置にも柔軟に対応できる搭載イスです。空間設計の自由度を高めるとともに、隣席からの振動を伝えにくくし、観客一人ひとりに快適な鑑賞環境を提供します。
厚みのあるクッションによる上質な座り心地に加え、フットペダル式の折りたたみ構造や静かな座面の起立動作など、操作性と機能性にも優れています。背裏と座裏はやわらかな張り包みタイプとリッチなウッドタイプから選択可能です。

eFORM [上張り 特注仕様/木部 PW-320]
製品情報

イスが独立しているため、隣席の振動が伝わりにくい構造です。

フットペダル式折りたたみ機構を1席ごとに搭載し、収納時の操作性が向上しました。

厚み50mm以上のモールドウレタンを使用し、長時間でも快適な座り心地。
RCS/RSP搭載イス Largo
スポーツ観戦に上質なデザインと快適な座り心地を
柔らかなフォルムとボリュームのあるモールドクッションにより、上質で快適な座り心地を追求したアリーナ専用モデルです。移動観覧席・固定席のどちらにも使用できる共通シートで、施設内の観客席を同じイスで統一することができます。
座が緩やかに起立する「座自動緩起立機構」が離席時の衝突音や振動を抑制し、静かな観賞環境を保ちます。離席時には座をさらに奥へ押し込み通路幅を確保することが可能で、スムーズな通行をサポートします。

Largo
製品情報

座が緩やかに起立する「座自動緩起立機構」が離席時の衝突音や振動を抑制し、静かな観賞環境を保ちます。

移動観覧席の限られた収納スペースにもすっきり収まるコンパクト設計。ダンパーが動作をゆるやかにサポートします。
RCS/RSP搭載イス AVOS
洗練されたデザインで通路幅を確保
すらりと伸びた背面のカーブがやさしく姿勢を保ちます。座面を上げると背と一直線に収まり、厚みが薄くなるため通路幅をしっかり確保できます。固定席としてのほか、移動観覧席やアリーナ用イス配置システム(マトリックスシステム)にも搭載が可能です。本格的な文化・芸術の拠点となる施設にも相応しい風格と品質を備えています。

AVOS [上張り 特注仕様]
製品情報

背面から座面に続く柔らかなカーブは、身体に馴染む理想的な形を描き、大きめの背座や肘でしっかりと身体を支えます。

肘掛まで一直線に納まるコンパクトな収納スタイルも、丸みを帯びた造形がエレガントな佇まいで、未来的な印象を与えます。
RCS/RSP搭載イス LIMS
メンテナンスがしやすいスタイリッシュなシート
快適な座り心地と優れた収納性を兼ね備えた、新時代のスタンダードモデルです。しなやかで洗練されたスクエアシルエットは、背と座に柔らかなカーブを持たせることで身体へのフィット感を高めています。
メンテナンス性に優れた樹脂タイプに加え、やわらかな張り包みタイプのLIMS-M、ナチュラルな木調タイプのLIMS-Wも選択可能です。
製品情報

「中立起立機構」により離席時に背と座の間に適度な空間が生まれるため座を開きやすく、スムーズに着席することができます。

離席時に座がゆっくりと起立する「座自動緩起立機構」により、衝突音や振動を抑え、鑑賞への集中を妨げません。
イスオプション
A3用紙が置ける前テーブル TB(エレガンテ)
愛知県歯科医師会館 歯~とぴあホール
A3サイズ対応の木製テーブルです。テーブルがゆっくりとボックス内に収まる静音設計で、指挟みなどのトラブルも防止します。多目的教室やセミナールームに最適です。

ライトに進化したA3サイズ前テーブル TB(エレガンテ ライト)
「エレガンテ」の機能性はそのままに、樹脂素材を採用することで、スマートな薄型デザインを実現しました。多様な学びを支える新たなスタンダードです。

ノートパソコンが置ける前テーブル TB(デルテR)

文教大学越谷キャンパス 14号館LECRO 14101大講義室
収納ボックス付きでありながら、コンパクトな設計を実現しました。特別授業や講演、セミナーなどの多目的利用を目指す施設に最適です。

筆記が必要なセミナーなどに便利な回転式肘メモ台 T1

名古屋工業大学 講堂 NITech Hall
筆記時にはイス肘支柱に取付けられた肘メモ台を回転させ使用します。肘メモ台を設置しても、標準的な前後寸法で対応できます。
