客席レイアウト
劇場やホールなどの興行場の客席は、各都道府県の建築条例や火災予防条例に適合したレイアウトが求められます。

寸法設定
収納時寸法設定
※各段奥行寸法(mm)
壁面固定式
固定方法
床面にはアンカーまたはタッピンネジで固定します。後ろ壁にはアンカーで固定します。
ブロー成形シリーズ
SS08 背付タイプ

各段奥行:850
( )寸法:セミオート
SS07 背無タイプ

各段奥行:650
( )寸法:セミオート
木製シリーズ
SS04 背・座張地付タイプ

各段奥行:850
( )寸法:セミオート
SS01 背・張地無タイプ

各段奥行:650
( )寸法:セミオート
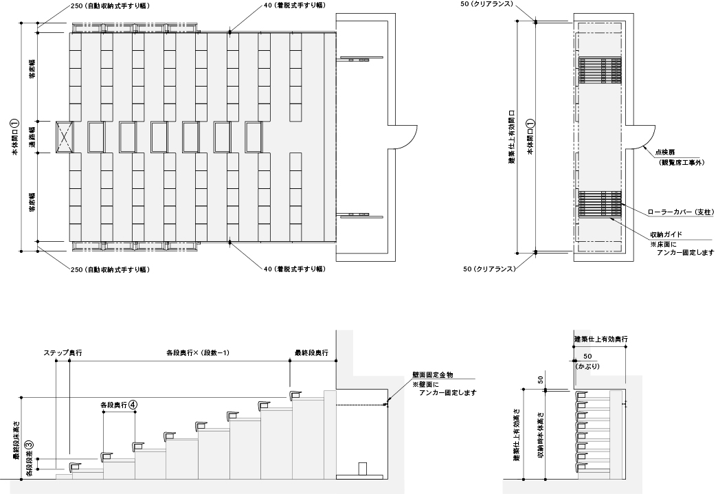
壁面収納式(収納庫あり)
建築仕上有効奥行
各段奥行により決定します。
建築仕上有効高さ
収納時本体高さ+クリアランス
固定方法
床面にはアンカーまたはタッピンネジで固定します。後ろ壁にはアンカーで固定します。
ブロー成形シリーズ
SS08 背付タイプ

各段奥行:850
( )寸法:セミオート
SS07 背無タイプ

各段奥行:650
( )寸法:セミオート
木製シリーズ
SS04 背・座張地付タイプ

各段奥行:850
( )寸法:セミオート
SS01 背・張地無タイプ

各段奥行:650
( )寸法:セミオート
全体移動式
建築仕上有効高さ
収納時本体高さ+クリアランス
リフター台車を使用し、リフトアップ(約55mm上昇)させて移動します。収納庫及び収納庫までの移動経路上の建築仕上有効高さ(本体+リフトアップ高さ以上)を確保願います。
ブロー成形シリーズ
SS08 背付タイプ

各段奥行:850
SS07 背無タイプ

各段奥行:650
木製シリーズ
SS04 背・座張地付タイプ

各段奥行:850
SS01 背・張地無タイプ

各段奥行:650